info@snjelecdesign.lk +94 71 191 3026

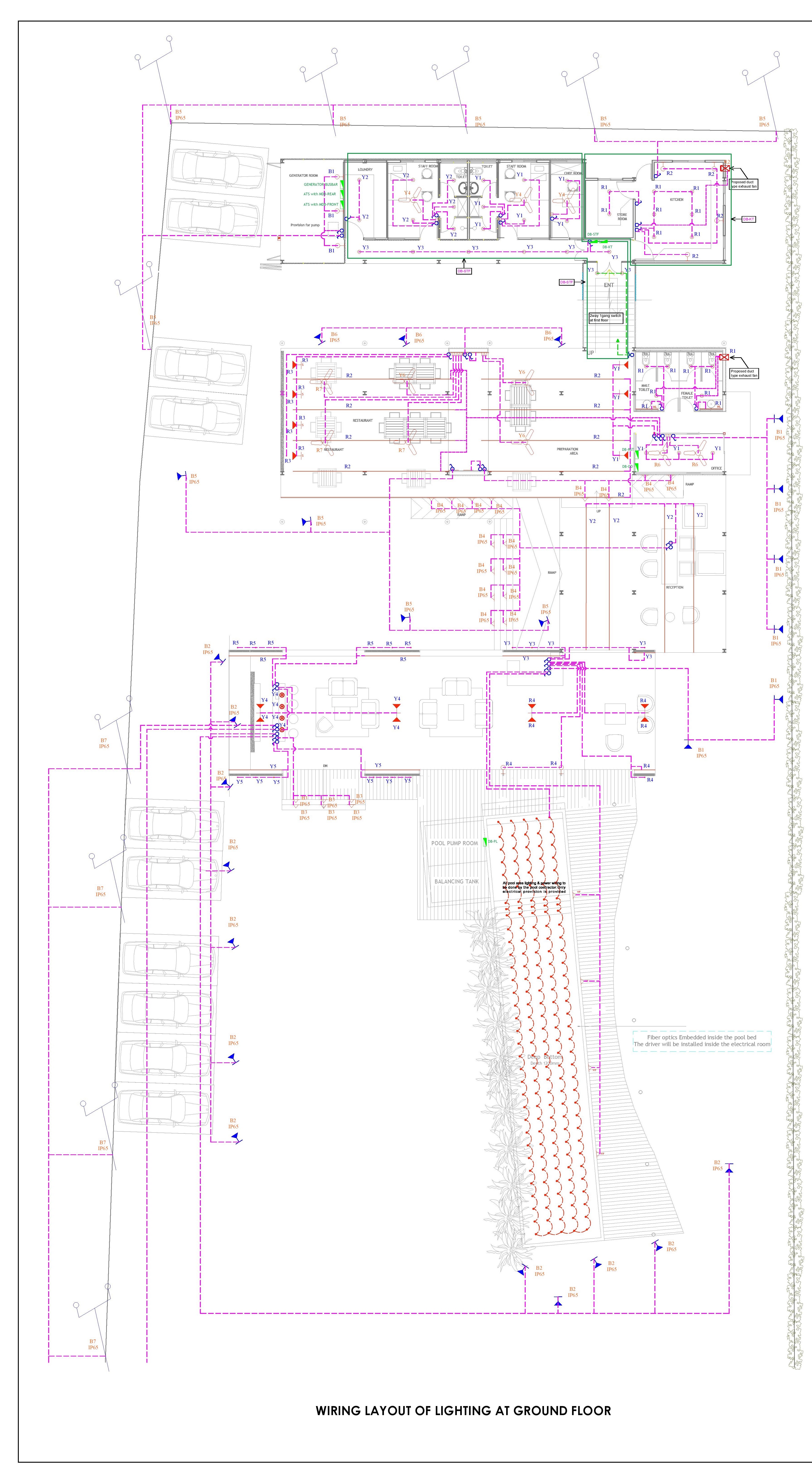
Structure (11250sqft)


Ground floor


Pool / 2nos Restaurant / Kitchen / Office 


First floor


8nos Rooms


Second floor


4nos Rooms


Architectural & 3D Design by


Earth & Space Pvt(Ltd)





Black Root

Location
: Unawatuna
Status
: Completed