info@snjelecdesign.lk +94 71 191 3026

Power supply - 32A 3Phase

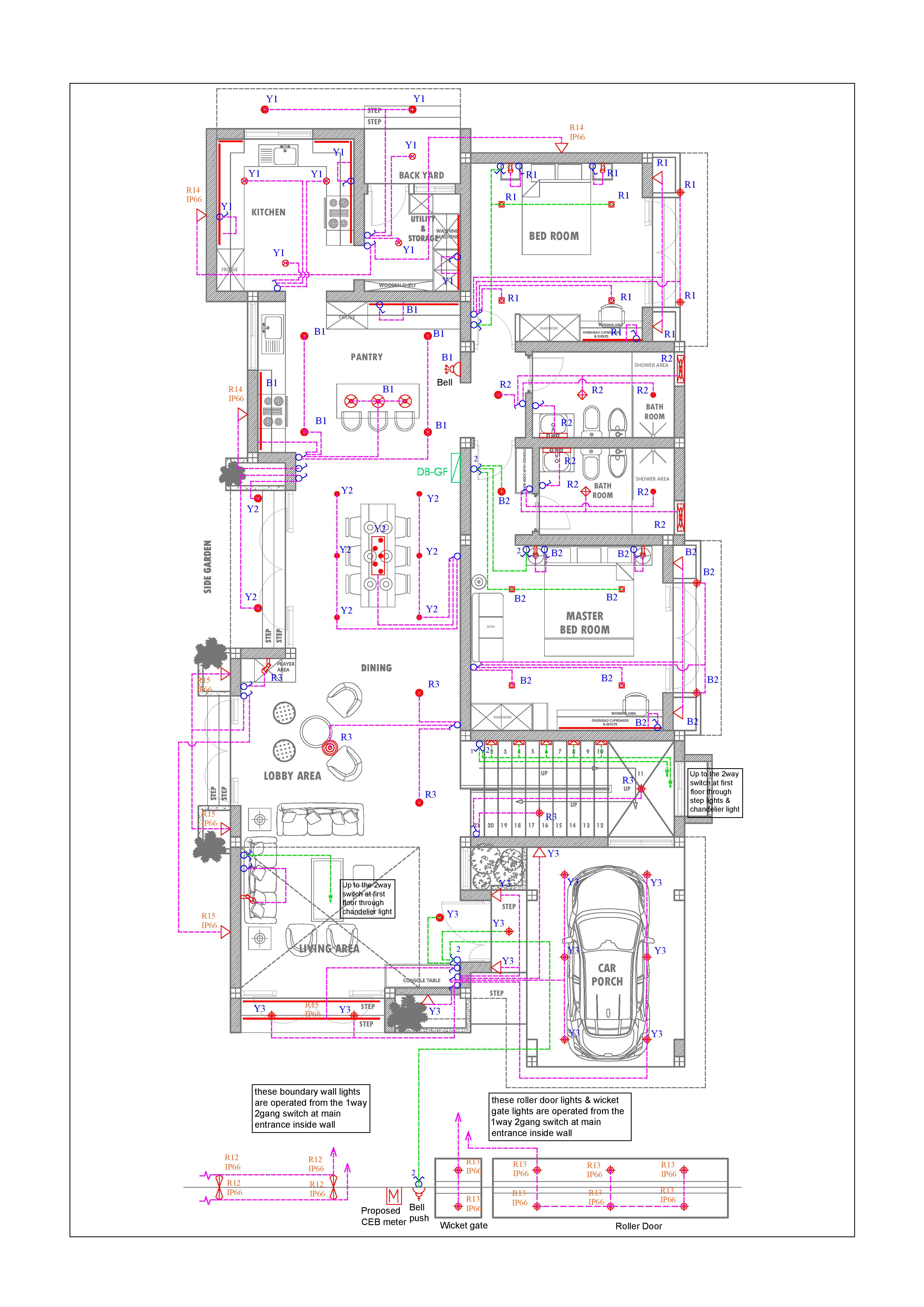
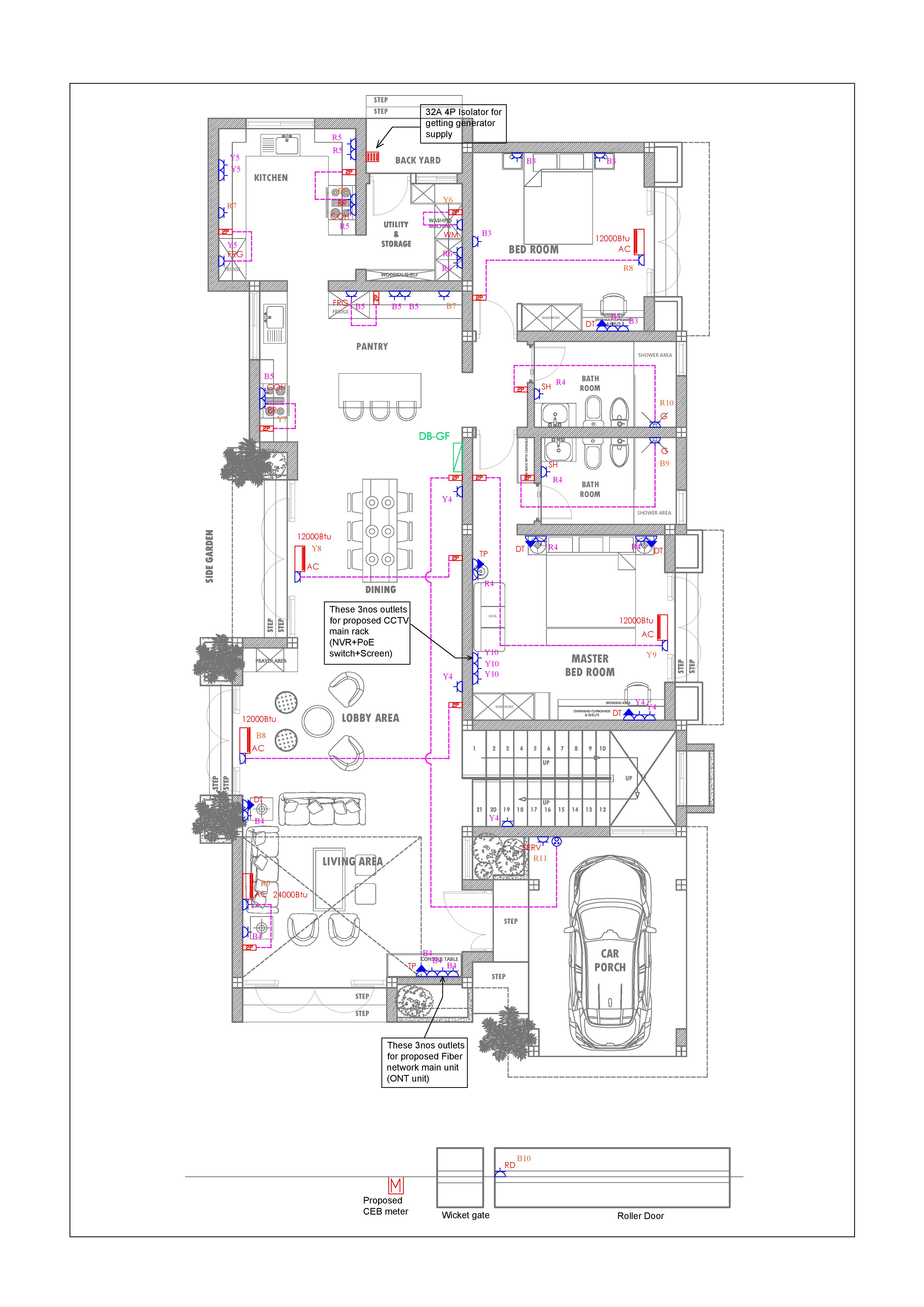
Structure (4030sqft)

Ground floor

2nos bed room / Kitchen / Utility / Pantry / 2nos bath room / Dining / living / Car porch

First floor

2nos bed room / Pantry / Storage / TV Lobby / Bath room

Architectural & 3D Design by

SHAMROCK Homes
Mr. Eranda J Fernando
+9477 946 3871

Dhammika House

Location
: Negombo
Status
: Completed