info@snjelecdesign.lk +94 71 191 3026

Power supply - 32A 3Phase

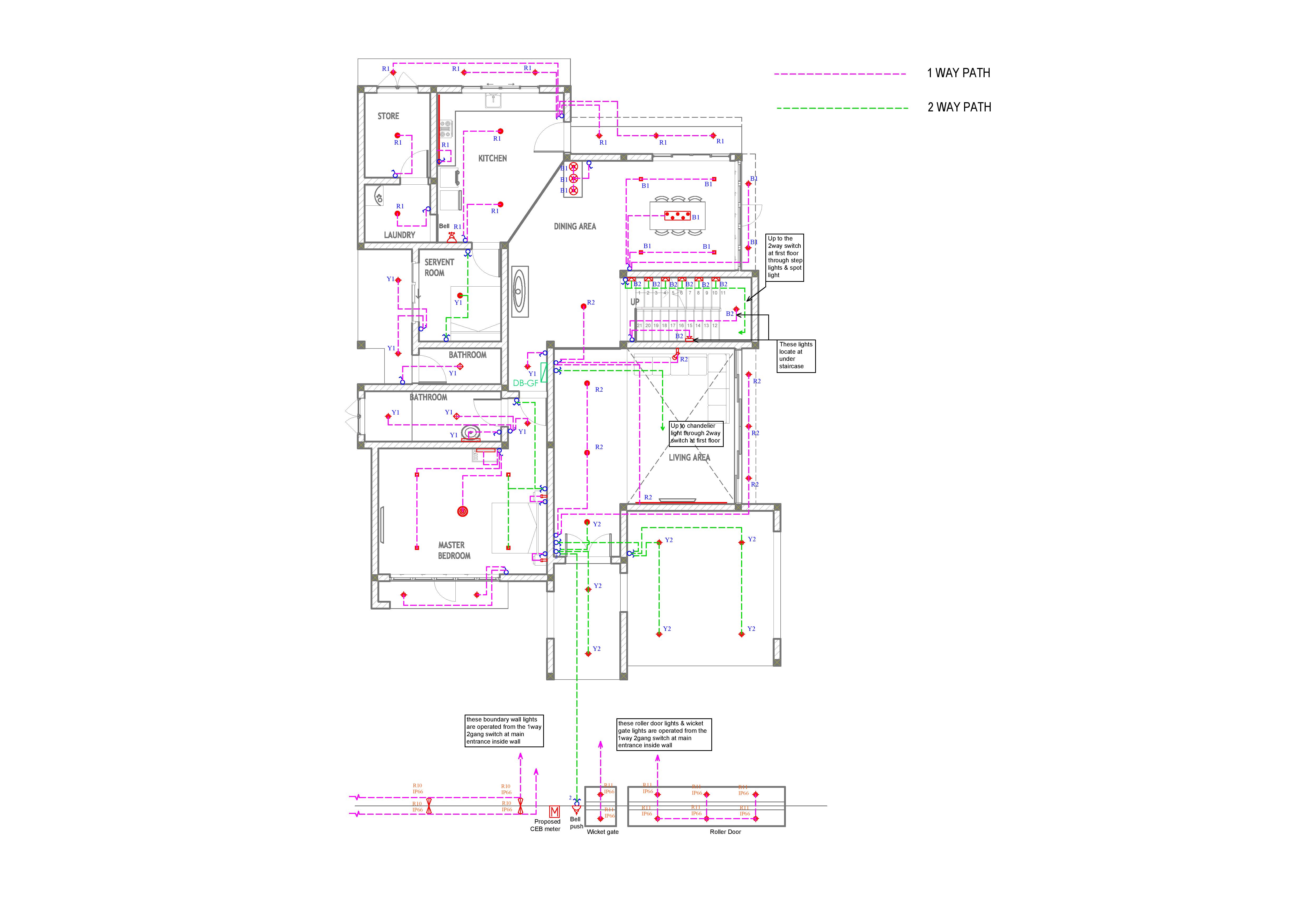
Structure (5229sqft)

Ground floor

Car porch / M.bed room / Living / Servant room / Kitchen / Laundry / Dining

First floor

Living / Study room / 2nos bed room / Bath room

Architectural & 3D Design by

Buddhika Jayasinghe Associates


Dr. Dilan House

Location
: Ambalantota
Status
: Completed