info@snjelecdesign.lk +94 71 191 3026

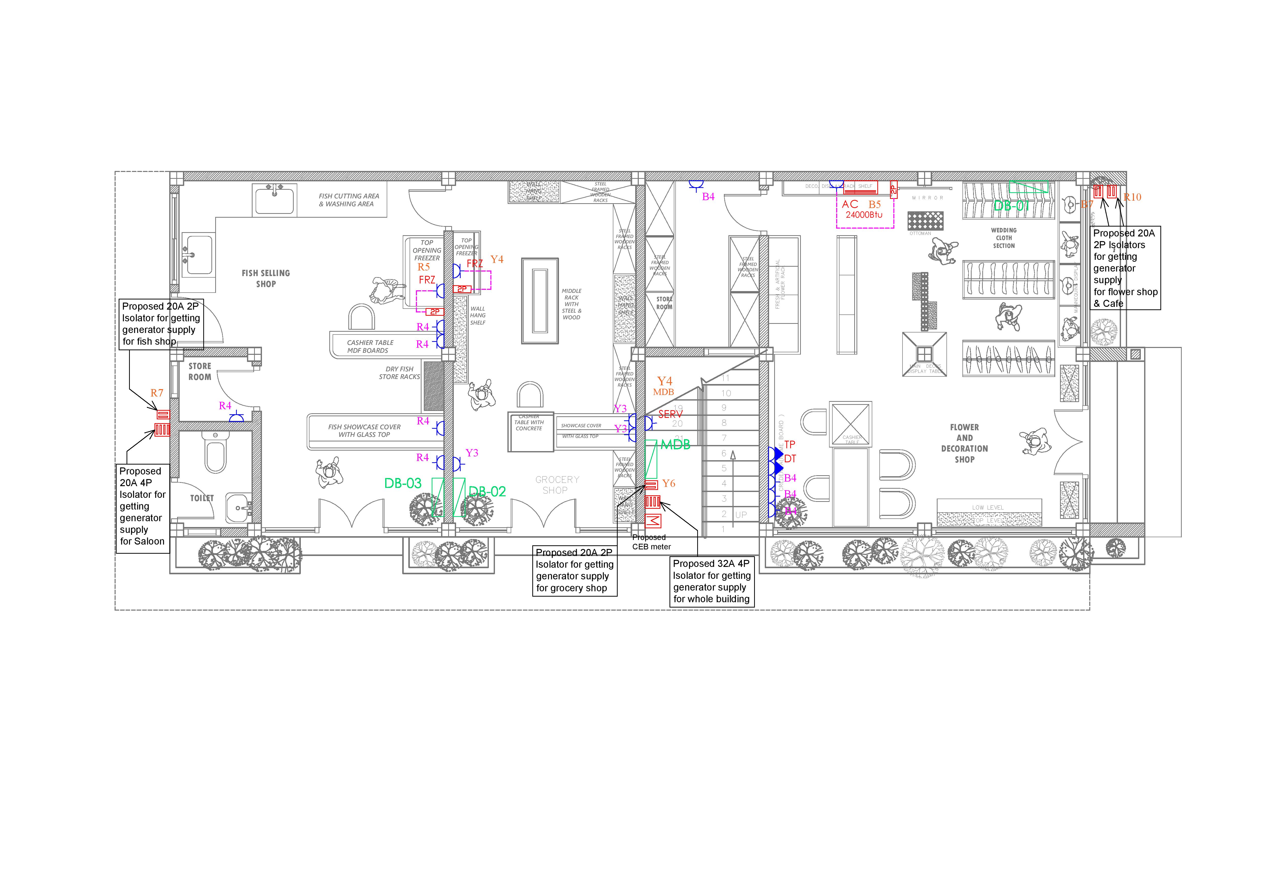
Power supply - 32A 3Phase 


Structure (2710sqft)

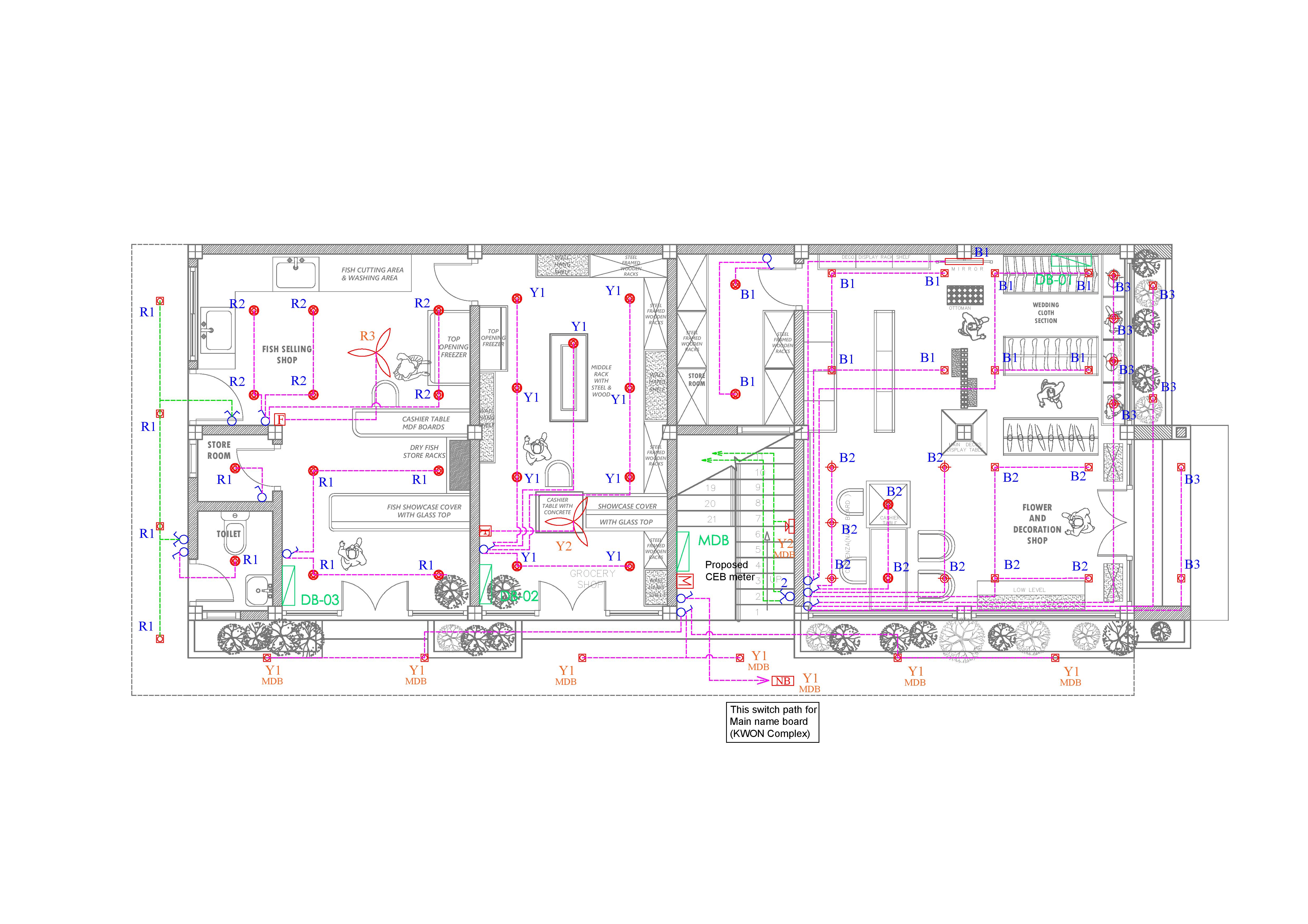
Ground floor

Flower & Decoration shop

Grocery shop

Fish selling shop


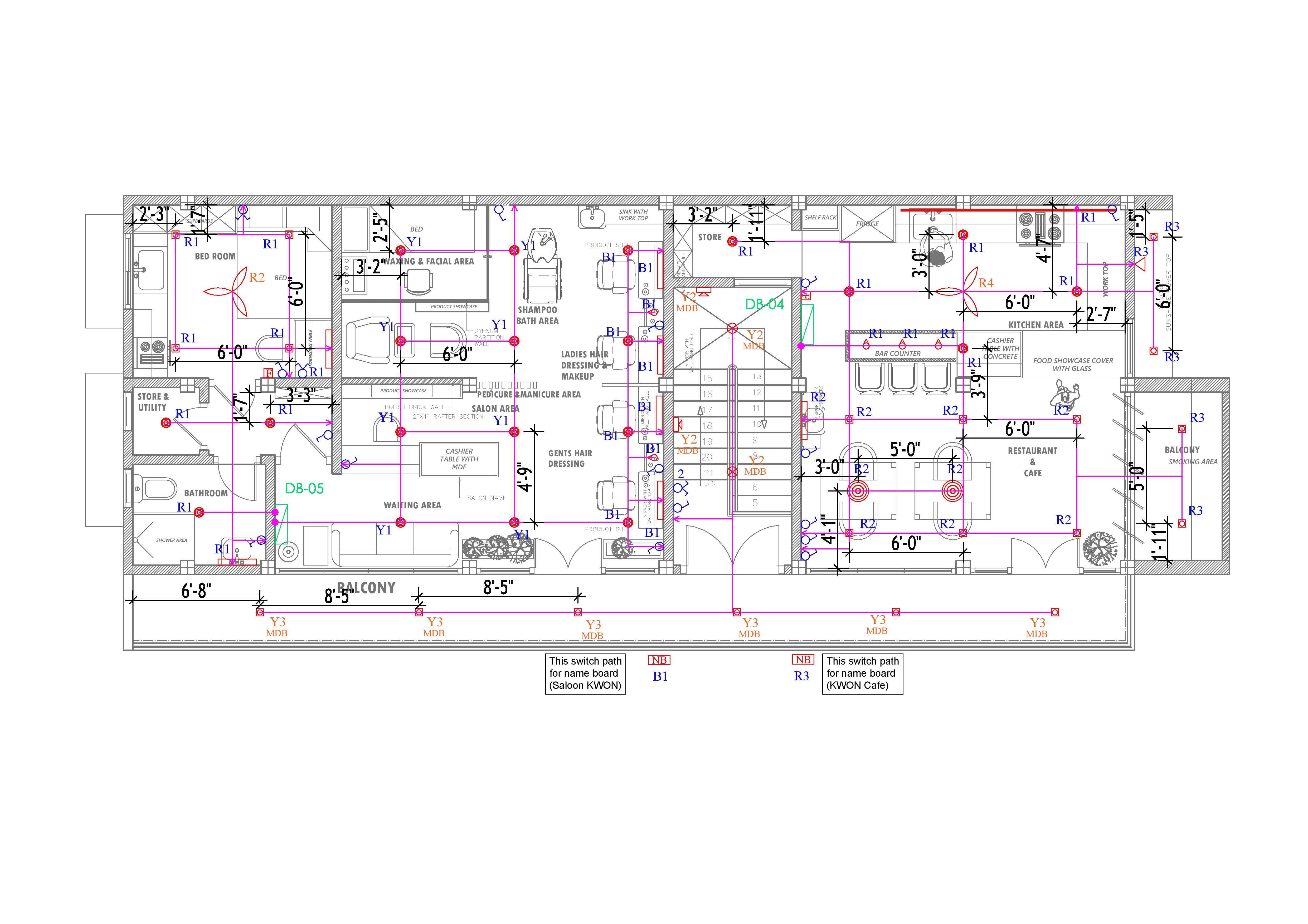
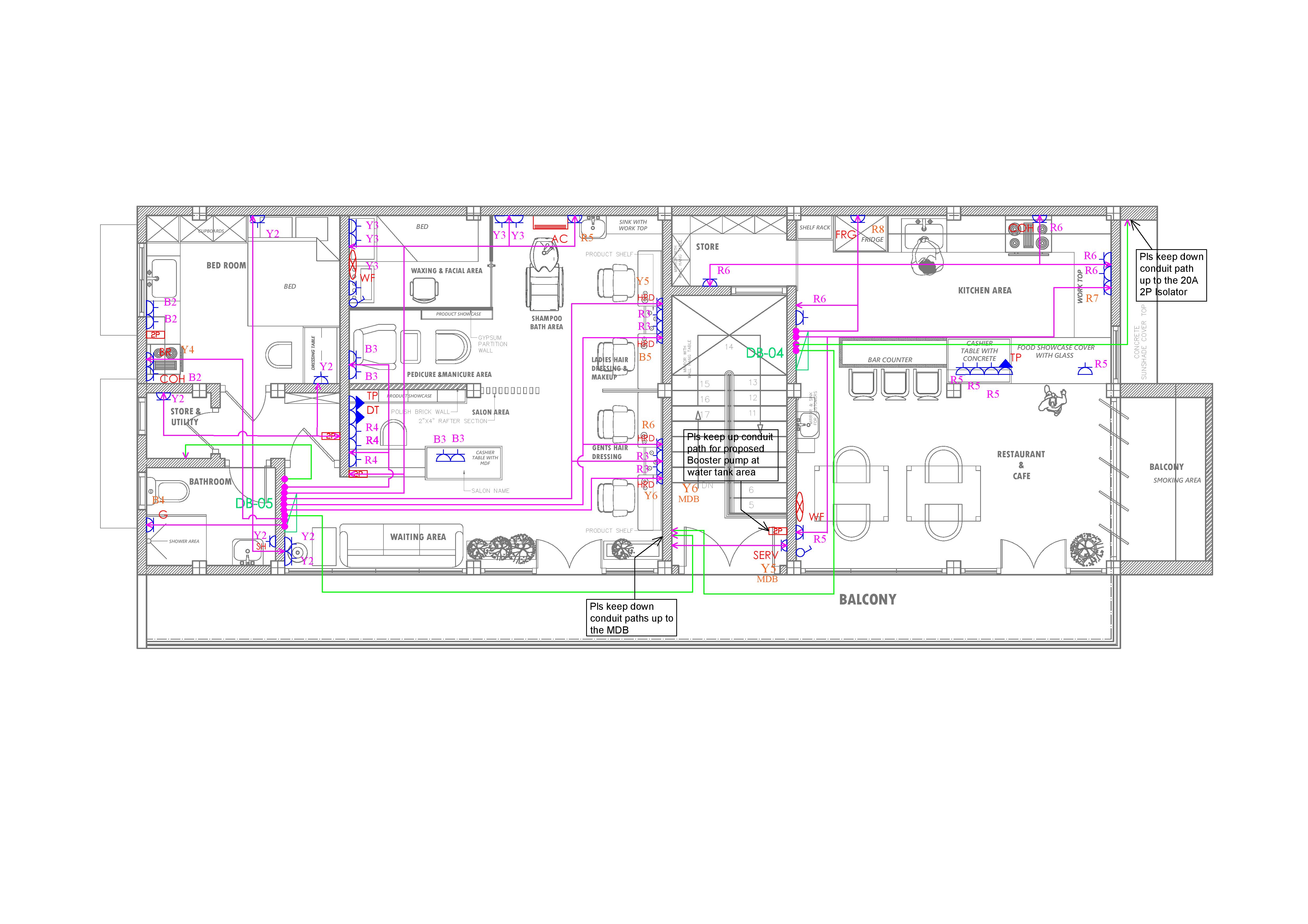
First floor

Saloon

Restaurant & Cafe 


Architectural & 3D Design by:

SHAMROCK homes

Mr. Eranda J Fernando

+9477 946 3871

KWON Complex

Location
: Wanathawillua
Status
: Completed