info@snjelecdesign.lk +94 71 191 3026

Power supply - 32A 3phase

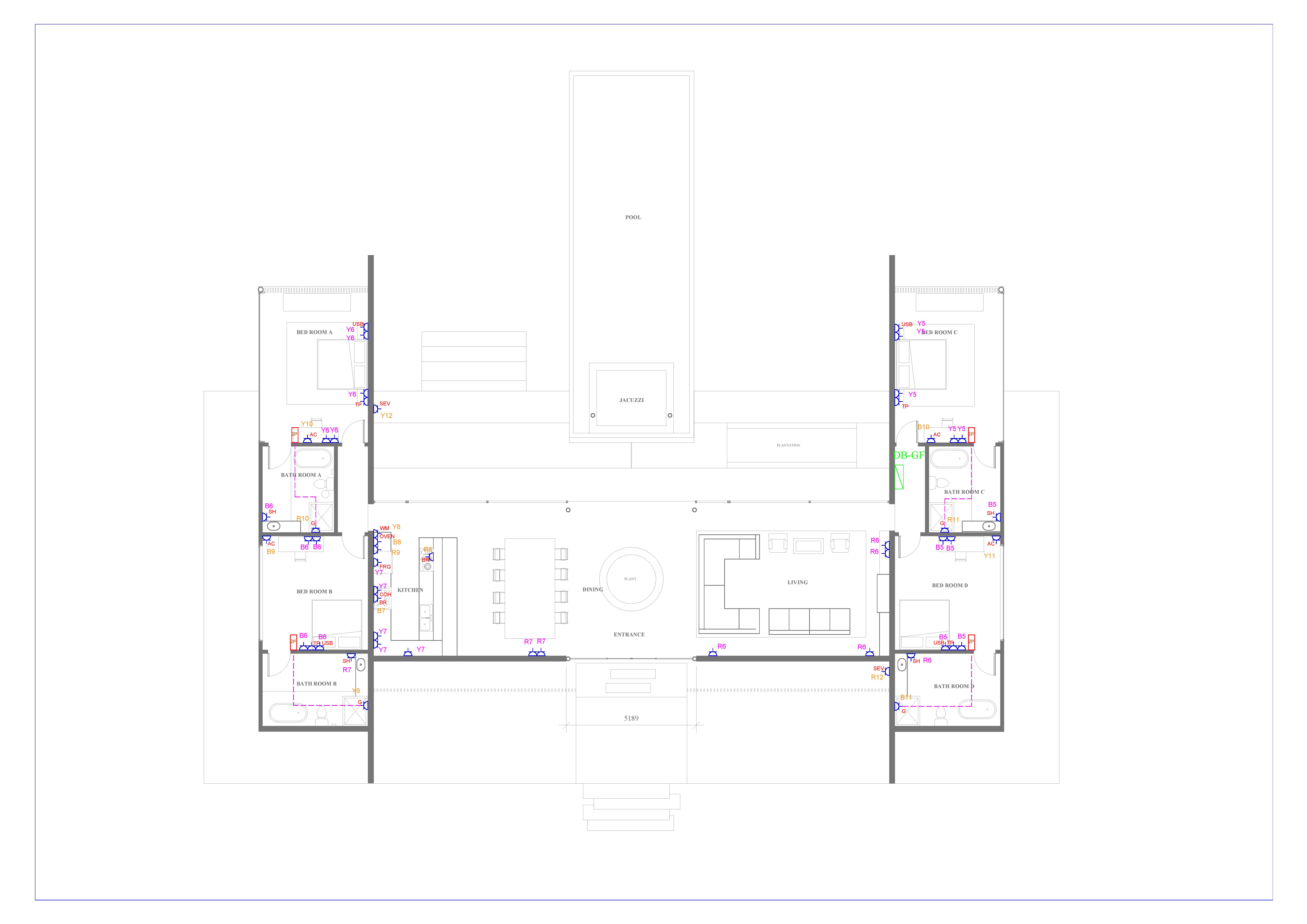
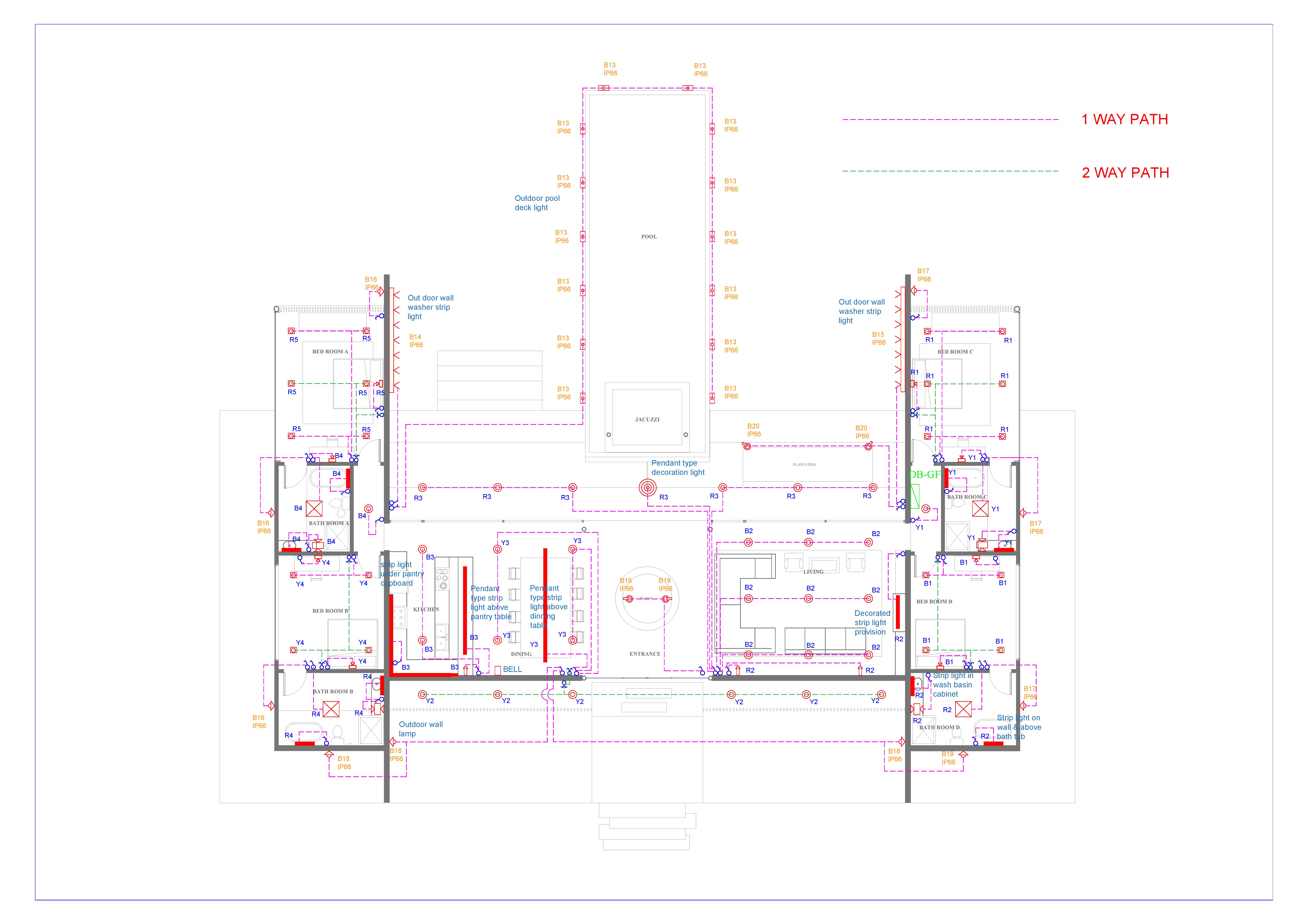
Structure (4313sqft)

Ground floor

4nos bed room / 4nos bath room / Kitchen / Dining / Living / Pool / Court yard

Architectural & 3D Design by

Iconic Designers & Consultants

Parker House

Location
: sweeden
Status
: Completed