info@snjelecdesign.lk +94 71 191 3026

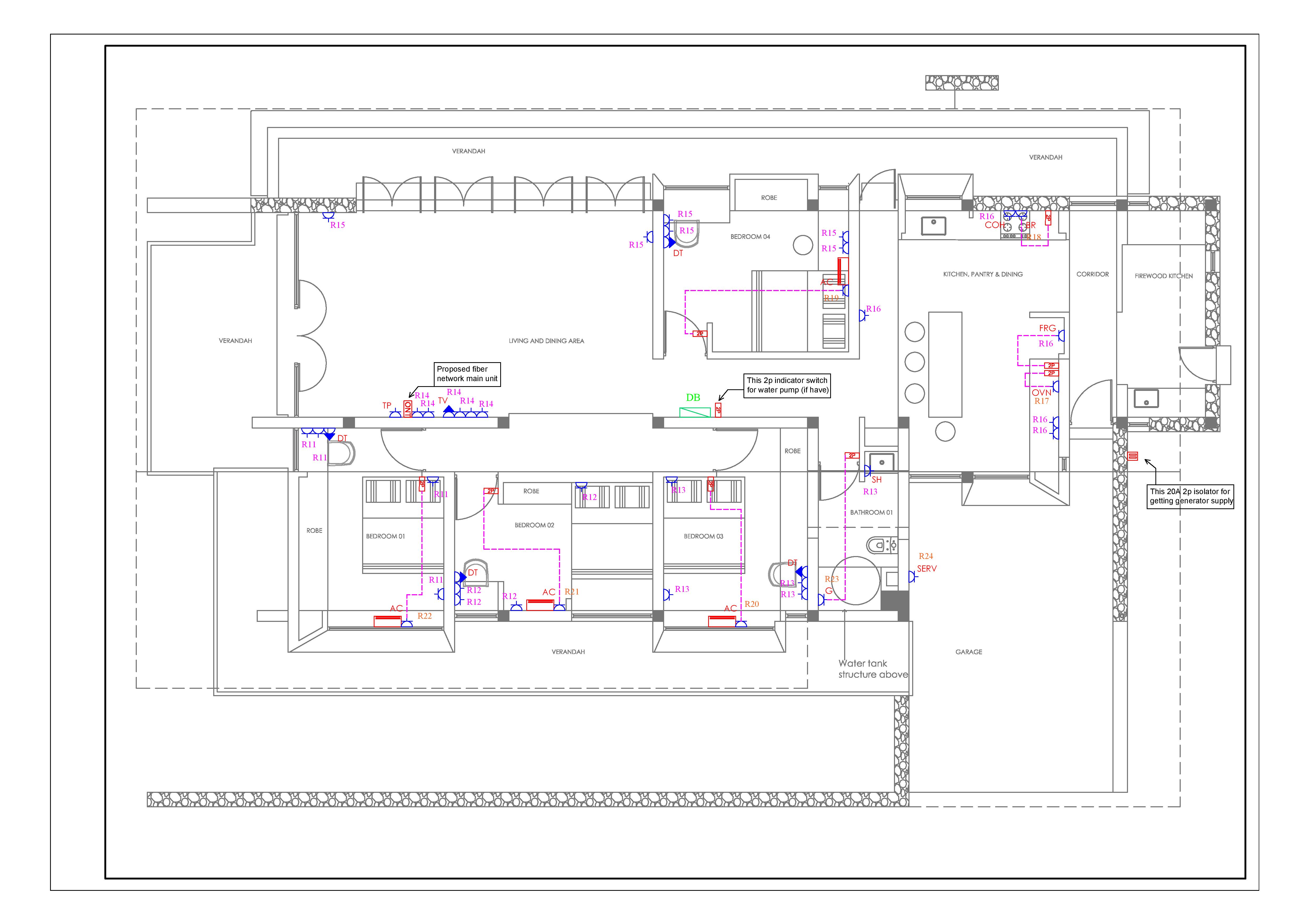
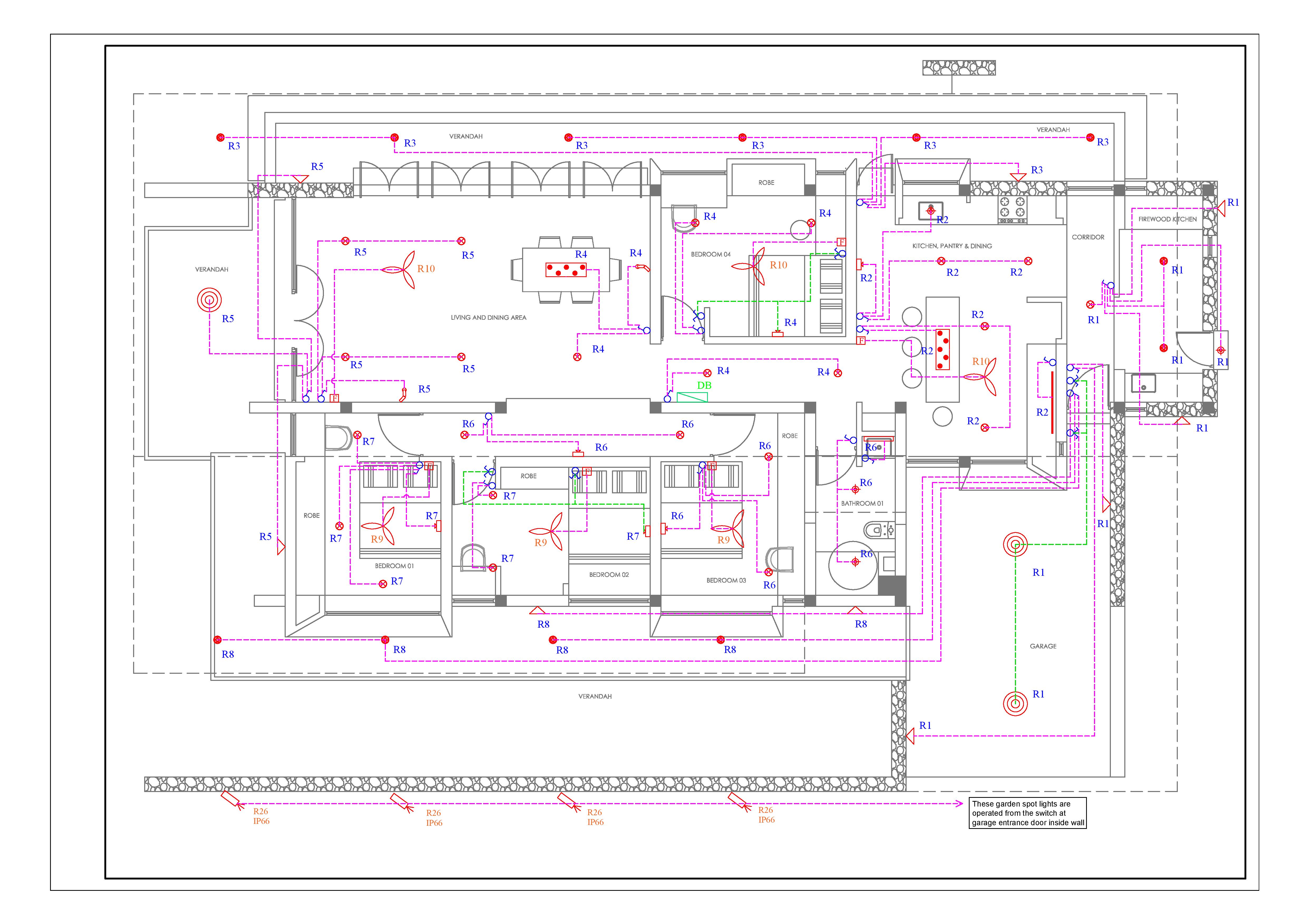
Power supply -32A 1Phase 

Structure (2740sqft)

Ground floor

Living / Dining / 4nos bed room / bath room / Car porch / Kitchen / Pantry / Wet kitchen

Structural & 3D Design by

Eco - Rich Design & Construction

Rock House

Location
: Ingiriya
Status
: Completed