info@snjelecdesign.lk +94 71 191 3026



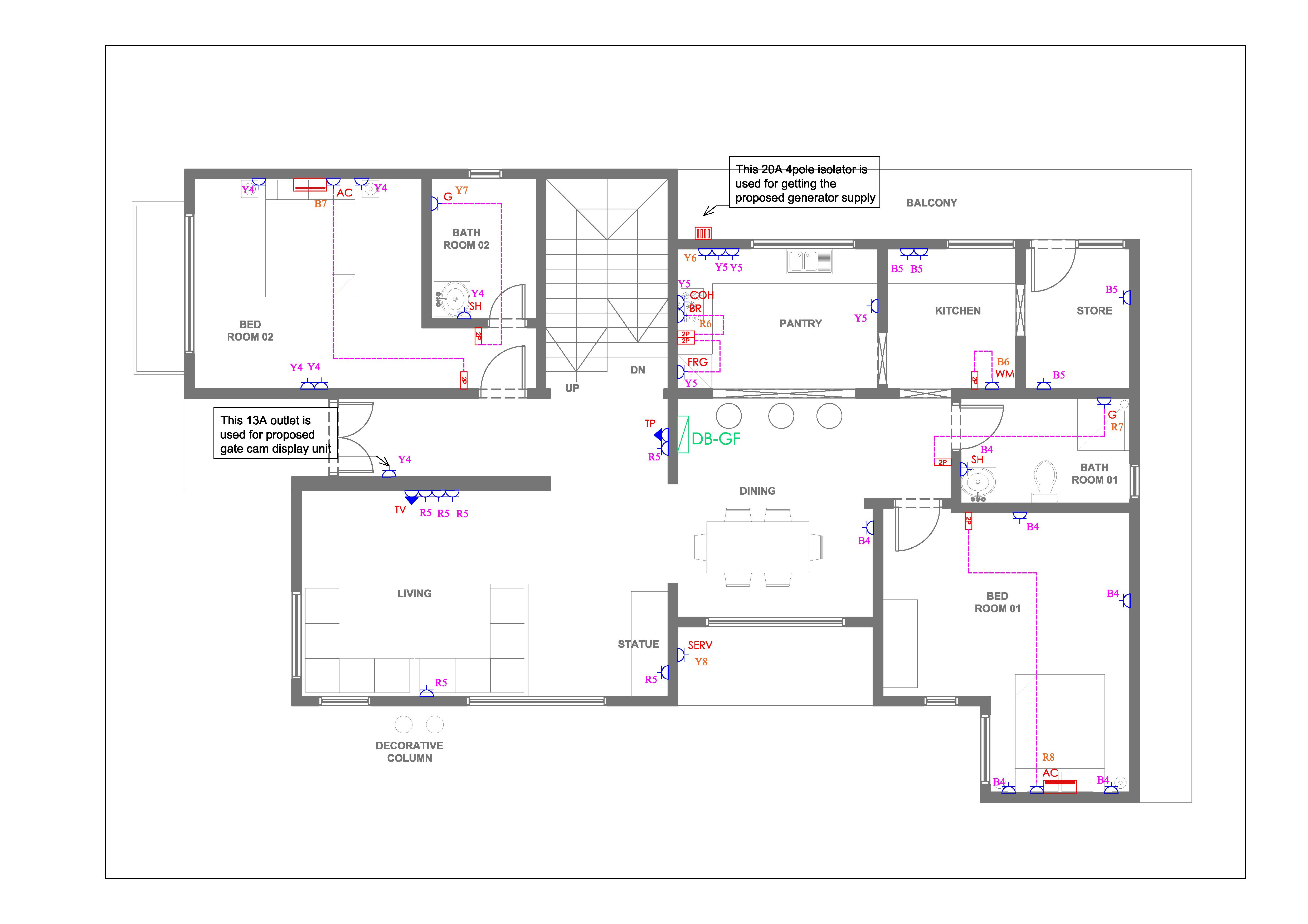
Power supply - 32A 3Phase

Structure (2710sqft)

Ground floor

Living / Dining / 2nos bed room / 2nos bath room / Pantry / Kitchen / Store

First floor

2nos bed room / 2nos bath room / Gym / Study room / Living

Architectural & 3D Design by

Gee Creation

Rohan House

Location
: Kandy
Status
: Completed